Skip to the content
logo mainlogo darklogo light
  • About us
  • Portfolio
  • Contact us
logo main
  • About us
  • Portfolio
  • Contact us
logo main
  • About us
  • Portfolio
  • Contact us

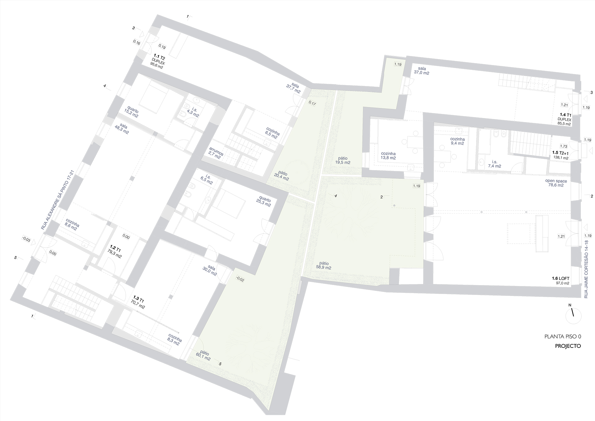
Edifício em Ovar

Concurso

Date:

2018

Category:
ConcursoHabitaçãoReabilitação
Localização:
Ovar
Projeto:
2017
Cliente:
Santa Casa da Misericórdia de Ovar
Área:
831 m²
Colaboração:
Joana Pereira
Imagem 3D:
Nuno Rezende
Tags:
Prev Next
Stand JOP Delfim Ferreira
ReabilitaçãoServiços
Complexo Habitacional em Freamundo
ConcursoHabitação
Edifício na Rua do Heroísmo
ComércioConcursoHabitaçãoReabilitação
Conjunto Habitacional em Almada
ConcursoHabitação
© 2026 cprata arquitetos | By PTCreative

Serviços

Saúde

Reabilitação

Interiores

Habitação

Equipamento

Educação

Desenho Urbano

Concurso

Comércio