Skip to the content
logo mainlogo darklogo light
  • About us
  • Portfolio
  • Contact us
logo main
  • About us
  • Portfolio
  • Contact us
logo main
  • About us
  • Portfolio
  • Contact us

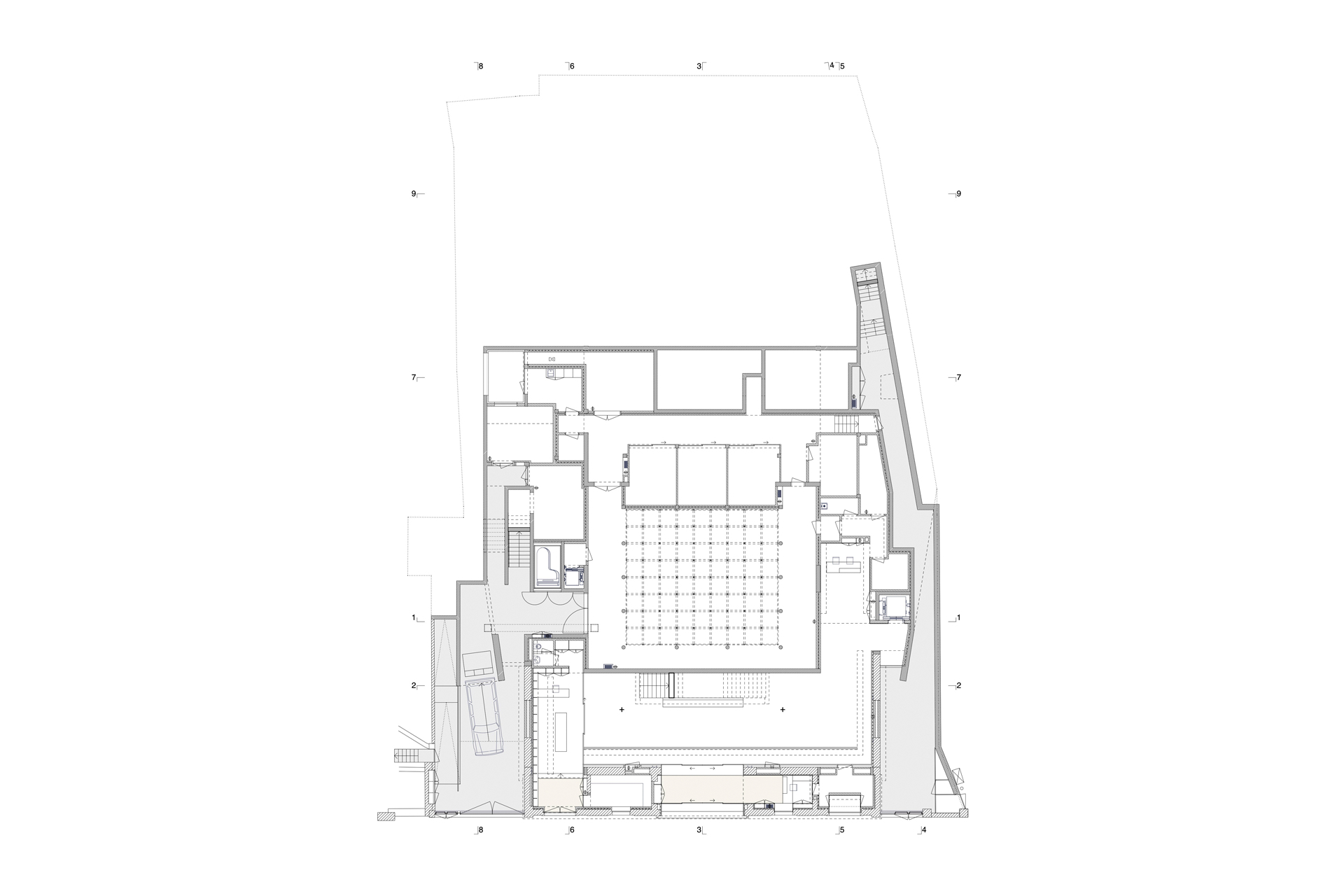
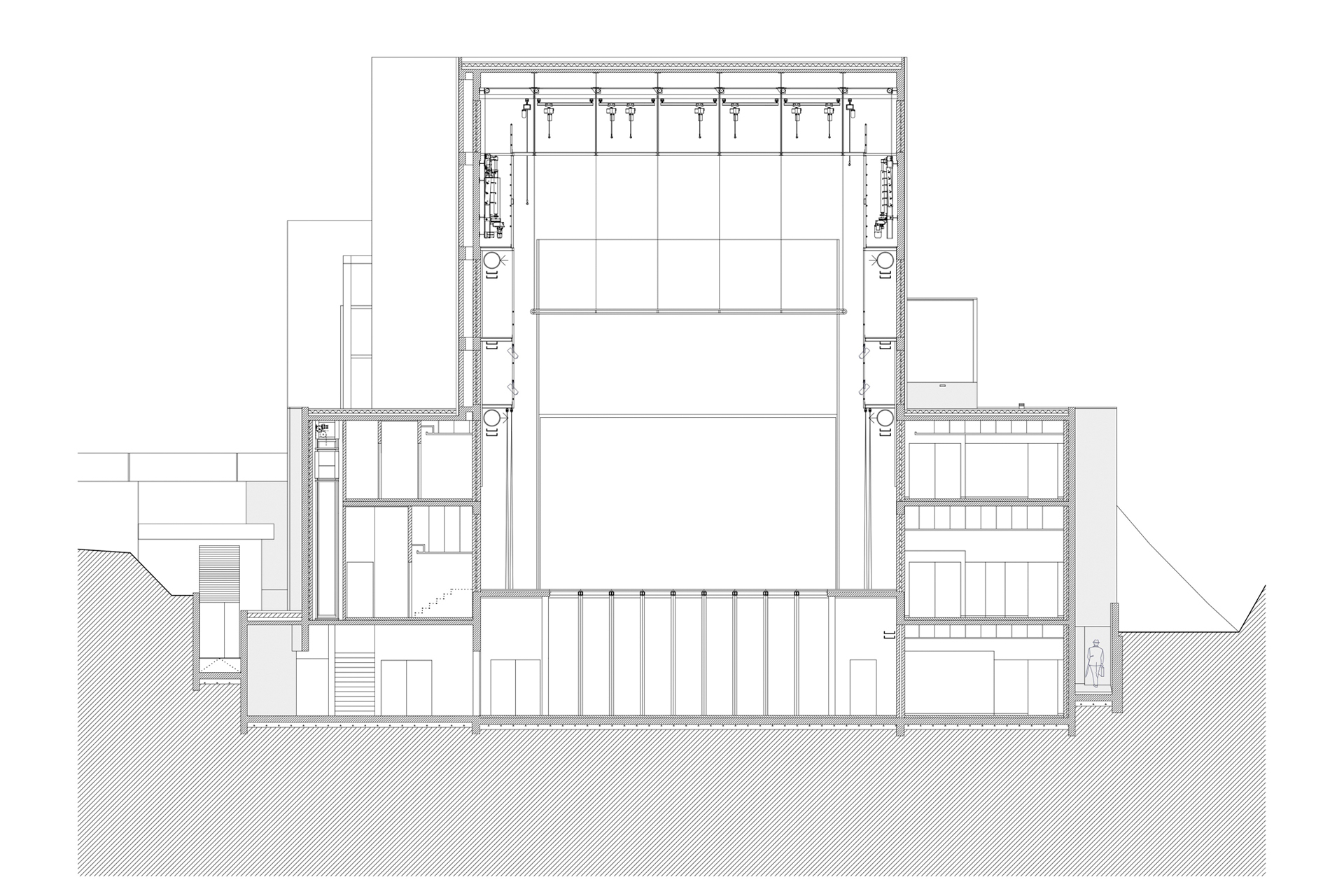
Recuperação do Cine-Teatro de Amarante

1º Lugar em concurso público

Date:

2021

Category:
EquipamentoReabilitação
Localização:
Avenida General Silveira, Cepelos | Amarante
Projeto:
2016-2017
Obra:
2021-2023
Cliente:
Câmara Municipal de Amarante
Área:
3 960 m²
Com:
Nuno Barbosa
Colaboração:
Nelson Cirne, Sara Almeida, Joana Pereira, Mafalda Mendonça, Ricardo Aleixo
Fotografia:
LFA | Marta Ferreira
Imagem 3D:
Estúdio Goma, Nuno Rezende
Tags:
Prev Next
Douro’s Place
ComércioHabitaçãoReabilitação
Carlton Life Domingos Brandão
ReabilitaçãoSaúdeServiços
APDL | Armazém para Manutenção Naval
EquipamentoServiços
Casa em Soutelo
HabitaçãoReabilitação
© 2026 cprata arquitetos | By PTCreative

Serviços

Saúde

Reabilitação

Interiores

Habitação

Equipamento

Educação

Desenho Urbano

Concurso

Comércio